显示器 和 Box iPC 安装

面板开口尺寸

使用机箱安装时,您需要根据显示器 的型号在安装面板中切割正确大小的开口。

G-SE-0042935.1.gif-high.gif

 

 

显示器 开口

A

B

C

R

4:3 12”

301.5 ±0.5 mm

(11.87 ±0.02 英寸)

227.5 ±0.4 mm

(8.95 ±0.02 英寸)

2...4 mm

(0.08...0.16 英寸)

5 mm

(0.20 英寸)

W12”

310 ±0.7 mm

(12.2 ±0.03 英寸)

221 ±0.4 mm

(8.7 ±0.02 英寸)

2...6 mm

(0.08...0.24 英寸)

4:3 15”

383.5 ±0.7 mm

(15.1 ±0.03 英寸)

282.5 ±0.4 mm

(11.12 ±0.02 英寸)

W15”

412.4 ±0.7 mm

(16.24 ±0.03 英寸)

261.7 ±0.4 mm

(10.3 ±0.02 英寸)

W19”

479.3 ±1 mm

(18.87 ±0.04 英寸)

300.3 ±0.7 mm

(11.82 ±0.03 英寸)

W22”

550.3 ±1 mm

(21.67 ±0.04 英寸)

341.8 ±0.7 mm

(13.46 ±0.03 英寸)

注意:

o确保安装面板的厚度合理。

o所使用的所有安装面板表面都应经过增强处理。务必要考虑 显示器 的重量,尤其是在可能存在高度振动且安装面板可以移动的情况下,更是如此。将金属加强条安装到面板内部靠近面板开孔,以增加安装面板的强度。

o务必遵循所有安装公差要求。

o显示器 设计用在 4X 型机箱(仅室内用)的平坦表面上。

振动和冲击

安装或移动 Box iPC 时应额外注意振动程度。如果 Box iPC 安装在配备有脚轮的机架中,那么其在移动时,可能遭受过度的冲击和振动。

Caution_Color.gif小心

过度振动

o请事先规划好您的安装步骤,以确保设备不会受到过度的冲击与振动。

o确保安装面板开口和厚度在规定的公差范围内。

o在将 Magelis Industrial PC 安装到机箱或面板中之前,确保安装垫设置到位。安装垫提供额外的防振保护。

o以 0.5 Nm(4.5 磅英寸)的扭矩拧紧安装紧固件。

不遵循上述说明可能导致人身伤害或设备损坏。

安装垫

安装垫需要达到 显示器 的保护等级(IP66 或 4X 型室内)。

注意: P66 不是 UL 认证的一部分。

Caution_Color.gif小心

密封丢失

o在安装或重新安装前,应检查安装垫,同时还应根据工作环境的要求,定期检查。

o如果检查期间发现明显的划痕、撕裂、灰尘或过度磨损,应更换安装垫。

o不得在非必要情况下拉伸安装垫,且不得让安装垫接触框架的拐角或边缘。

o确保安装垫完全安置在安装槽中。

o将 Magelis Industrial PC 安装垫平坦且无划痕凹痕的面板中。

o以 0.5 Nm(4.5 磅英寸)的扭矩拧紧安装紧固件。

不遵循上述说明可能导致人身伤害或设备损坏。

安装 显示器

要安装 显示器,需使用安装垫和安装紧固件。其中,面板安装过程可由一个人完成。

Caution_Color.gif小心

过转矩和硬件松动

o在旋紧安装紧固件、机箱、附件或端子块螺钉时,扭矩不得超过 0.5 Nm(4.5 磅英寸)。固定螺钉时如果用力过猛容易损坏安装紧固件。

o紧固或拆除螺钉时,确保它们不会掉落到 Magelis Industrial PC 机壳中。

不遵循上述说明可能导致人身伤害或设备损坏。

注意: 安装紧固件需要达到 显示器 的保护等级(IP66 或 4X 型室内)。P66 不是 UL 认证的一部分。

步骤

操作

1

切断所有电源,确认电源的电力供应断开。

2

确认安装垫正确安装到 显示器。

注意: 检查安装垫时,避免接触 显示器 框架的尖锐边缘,然后将安装垫完全插入到凹槽中。

3

使用四颗螺钉将Box iPC固定到显示器 的背面:

G-SE-0043771.1.gif-high.gif

 

 

注意: 在拧这些螺钉时,推荐使用 0.5 Nm(4.5 磅英寸)的扭矩。

4

拧下底部的两颗螺钉:

G-SE-0042245.2.gif-high.gif

 

 

5

拧松 显示器 顶部的十字头螺钉,抬起弹簧钩。您不需要使用螺丝刀来抬起 显示器 4:3 12” 的弹簧钩:

G-SE-0042246.3.gif-high.gif

 

1   显示器 W12”、4:3 15”、W15”、W19” 和 W22”

2   显示器 4:3 12”

注:

o显示器 W12” 和 4:3 12” 使用一个弹簧钩

o显示器 4:3 15”、W15”、W19” 和 W22” 使用两个弹簧钩

6

将 显示器 安装在面板开口中,并将其推入墙壁中。弹簧钩将 显示器 保持在适当位置:

G-SE-0038233.3.gif-high.gif

 

 

间距要求

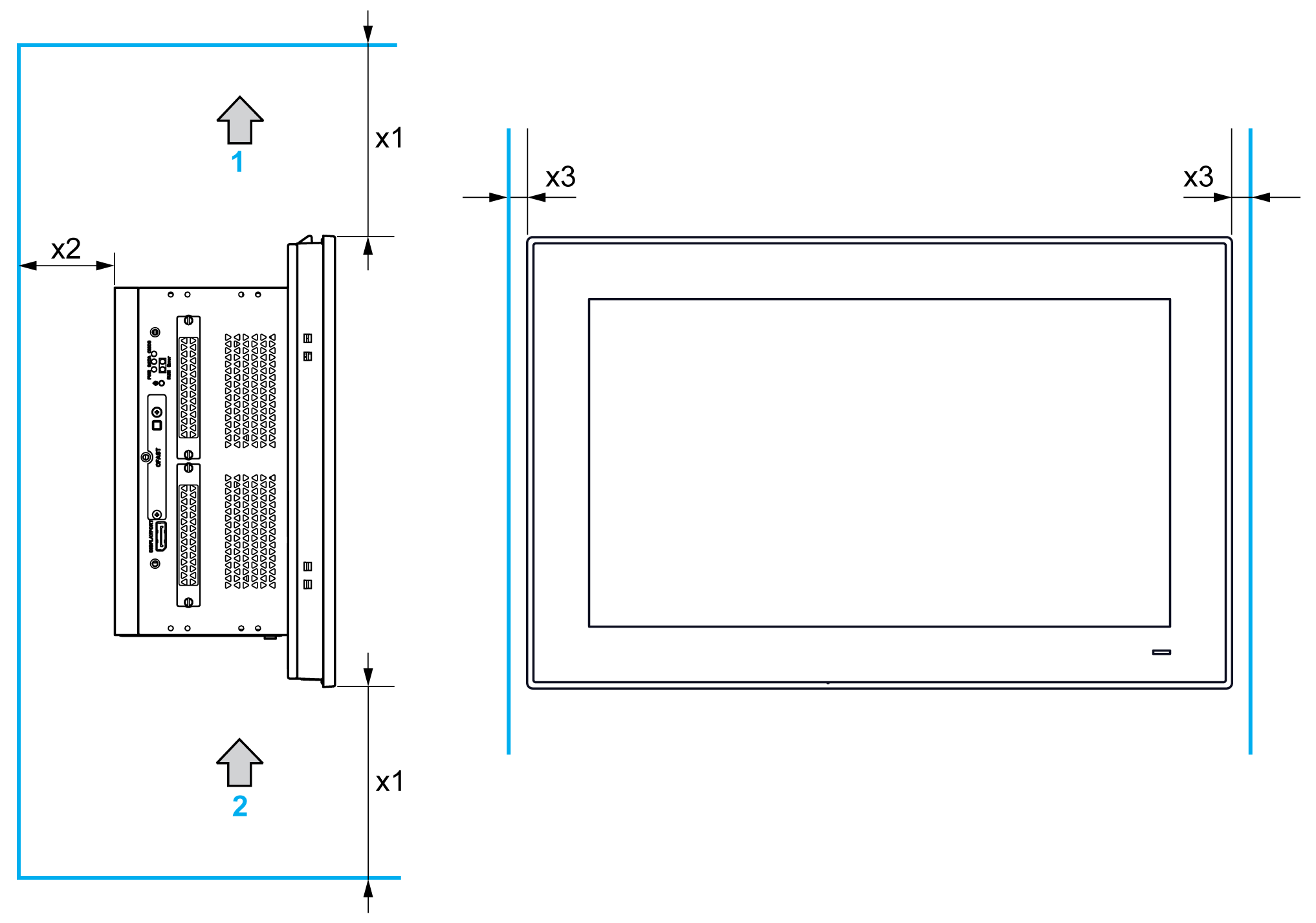
为了提供足够的空气流通,安装显示器时,设备上面、下面和侧面的间距如下:

G-SE-0042933.1.gif-high.gif

 

1   出气

2   进气

x1   > 100 mm(3.93 英寸)

x2   > 50 mm(1.96 英寸)

x3   > 15 mm(0.59 英寸)

安装方向

下图显示了带显示器的允许安装方向:

G-SE-0042934.1.gif-high.gif

 

 

根据 VESA(视频电子标准协会)标准安装

 

显示器

W12”

4:3 12”

W15”

4:3 15”

W19”

W22”

Box iPC Universal/Performance (HMIBMU/HMIBMP) 2 插槽

HMIYPVESA6X21

HMIYPVESA21

Box iPC Universal/Performance (HMIBMU/HMIBMP) 4 插槽

不允许

HMIYPVESA41

Box iPC Optimized (HMIBMI/HMIBMO)

HMIYPVESA6X21

HMIYPVESA21

显示器适配器

不提供适配器

按照下列步骤安装带 VESA 套件的Box iPC:

步骤

操作

1

在 Box iPC 的背面安置 VESA 安装套件:

G-SE-0043152.3.gif-high.gif

 

1   HMIYPVESA21 或 HMIYPVESA41

2   用于 显示器 W12” 和 4:3 12” 的 HMIYPVESA6X21

2

用六颗 M4 螺钉(8 mm(0.31 英寸))将 VESA(HMIYPVESA21 或 HMIYPVESA41)安装套件紧固在 Box iPC Universal/Performance 的背面:

用四颗 M4 螺钉(8 mm(0.31 英寸))将 VESA (HMIYPVESA6X21) 安装套件紧固在 Box iPC Optimized 的背面:

G-SE-0042932.3.gif-high.gif

 

1   HMIYPVESA21 或 HMIYPVESA41 板位置(尺寸:100 x 100 mm(3.94 x 3.94 英寸))

2   VESA 安装螺钉

3   HMIYPVESA6X21 板位置(尺寸:100 x 100 mm(3.94 x 3.94 英寸))

注意: 在拧这些螺钉时,推荐使用 0.5 Nm(4.5 磅英寸)的扭矩。

3

将支架安装到对应孔中,如图所示。使用四颗 M4 螺钉(10 mm(0.39 英寸))固定 VESA 支架。确认 Box iPC 的倾斜角不大于安装方向要求允许的角度。

G-SE-0043268.2.gif-high.gif

 

1   HMIYPVESA21 或 HMIYPVESA41

2   HMIYPVESA6X21

注意: 在拧这些螺钉时,推荐使用 0.5 Nm(4.5 磅英寸)的扭矩。