Description de l'unité Rack iPC Optimized

Face avant

G-SE-0029048.1.gif-high.gif

 

1   Voyant d'alimentation

2   Voyant de disque dur

3   Voyant de ventilateur

4   Voyant de température

5   2 ventilateurs

6   2 ports USB 2.0

7   Bouton de réinitialisation de l'alarme

8   Bouton de réinitialisation du système

9   Commutateur marche/arrêt

10   Connecteur KB/MS

11   2 baies de disque dur 3,5" remplaçables à chaud (en cas de non-utilisation par le système d'exploitation)

12   Baie de lecteur optique plat

Vue arrière

G-SE-0029049.1.gif-high.gif

 

1   Connecteur d'alimentation

2   Bloc d'alimentation

3   Connecteur KB/MS

4   Connecteur de port d'affichage

5   Connecteur de port série

6   Connecteur DVI

7   Connecteur VGA

8   2 ports USB 3.0

9   2 ports LAN

10   2 ports USB 3.0

11   Port audio

12   2 panneaux Sub-D9 de rechange

13   Emplacement d'extension PCI

14   2 emplacements d'extension PCIe (x8/x16)

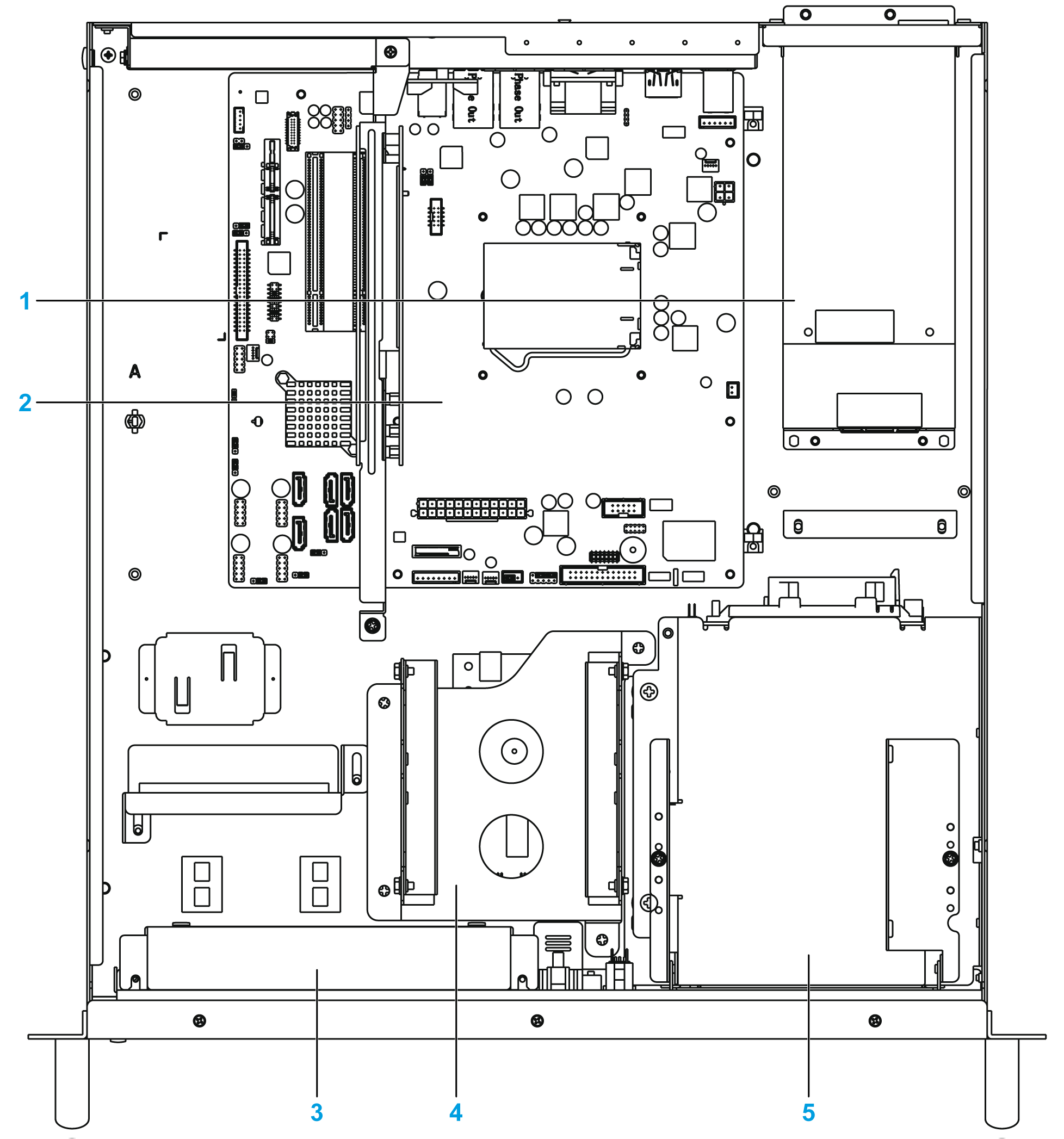
Vue du dessus

G-SE-0029050.1.gif-high.gif

 

1   Bloc d'alimentation

2   Carte-mère Micro-ATX

3   2 ventilateurs système

4   Disque interne SATA 3 3,5" pour le système d'exploitation

5   2 baies de disque dur remplaçables à chaud SATA 2 3,5"