Propuestas de aplicación para la función de seguridad basada en software

Descripción general

Las variantes E/F del Lexium 62 son necesarias para usar funciones de seguridad basadas en software. Al igual que las variantes C/D/G del Lexium 62, también ofrecen una entrada de dos canales específica para una función STO (Safe Torque Off) cableada.

En caso de no usar la función STO cableada, no es necesario conectarla. En este caso, las funciones de seguridad basadas en software usan Sercos y OpenSAFETY.

Por lo tanto, se ofrecen dos propuestas de aplicación en las que puede usar o no usar una función STO cableada. Si usa la función STO cableada, puede usar el resto de funciones de seguridad basadas en software, incluida la función STO basada en software.

Propuesta de aplicación para las variantes E/F con la función STO cableada

Realice estas operaciones para usar la función Inverter Enable mediante hardware con las variantes E/F del Lexium 62:

Paso

Acción

1

Conecte las variantes E/F del Lexium 62 con dos canales como las variantes C/D/G del Variantes C/D/G del Lexium 62.

2

Configure la red relacionada con la seguridad.

3

Ajuste los parámetros, sobre todo la priorización de la función Inverter Enable mediante hardware y la función STO (Safe Torque Off) mediante el bus.

4

Programe la aplicación EcoStruxure Machine Expert - Safety.

NOTA: Observe la información sobre los parámetros en la ayuda en línea de EcoStruxure Machine Expert - Safety.

Propuesta de aplicación para las variantes E/F sin la función STO cableada

Realice estas operaciones cuando no use la función Inverter Enable mediante hardware y solo use funciones de seguridad ampliadas con las variantes E/F del Lexium 62:

Paso

Acción

1

Conecte las variantes E/F del Lexium 62 como las variantes C/D/G del Lexium 62, sin usar los conectores CN6/CN11: Inverter Enable.

2

Configure la red relacionada con la seguridad.

3

Ajuste los parámetros, sobre todo la priorización de la función Inverter Enable mediante hardware y la función STO (Safe Torque Off) mediante el bus.

4

Programe la aplicación EcoStruxure Machine Expert - Safety.

NOTA: Observe la información sobre los parámetros en la ayuda en línea de EcoStruxure Machine Expert - Safety.

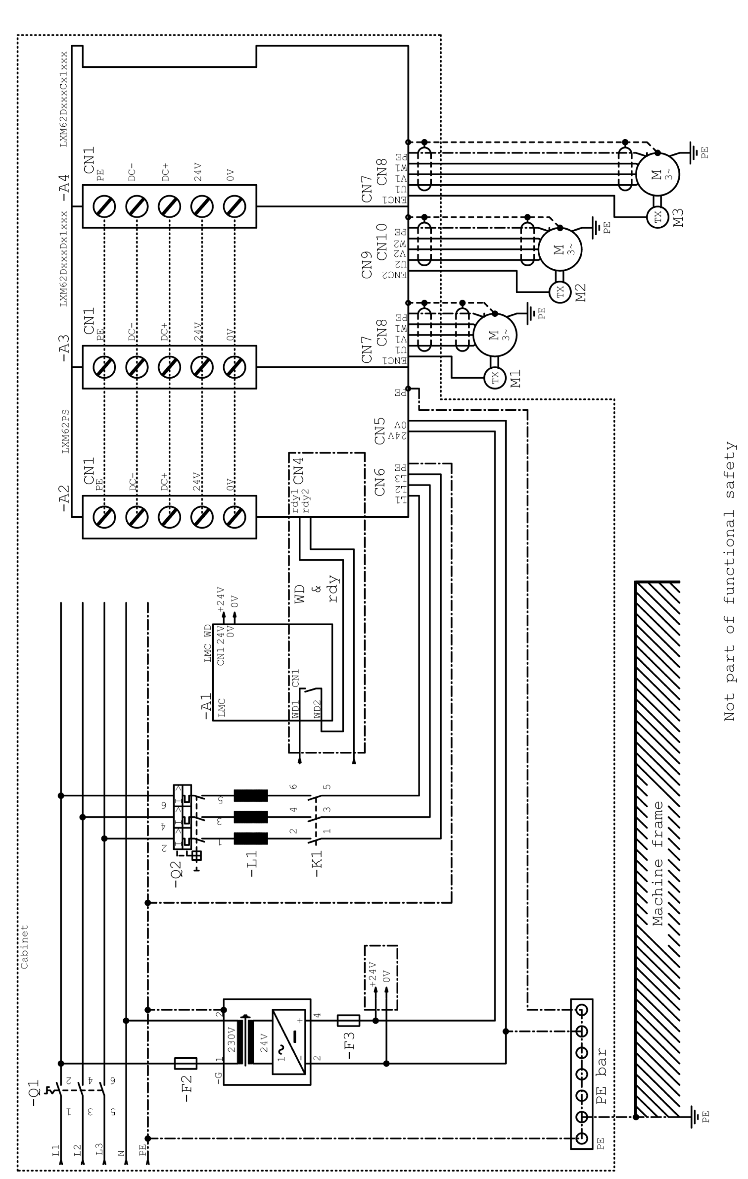
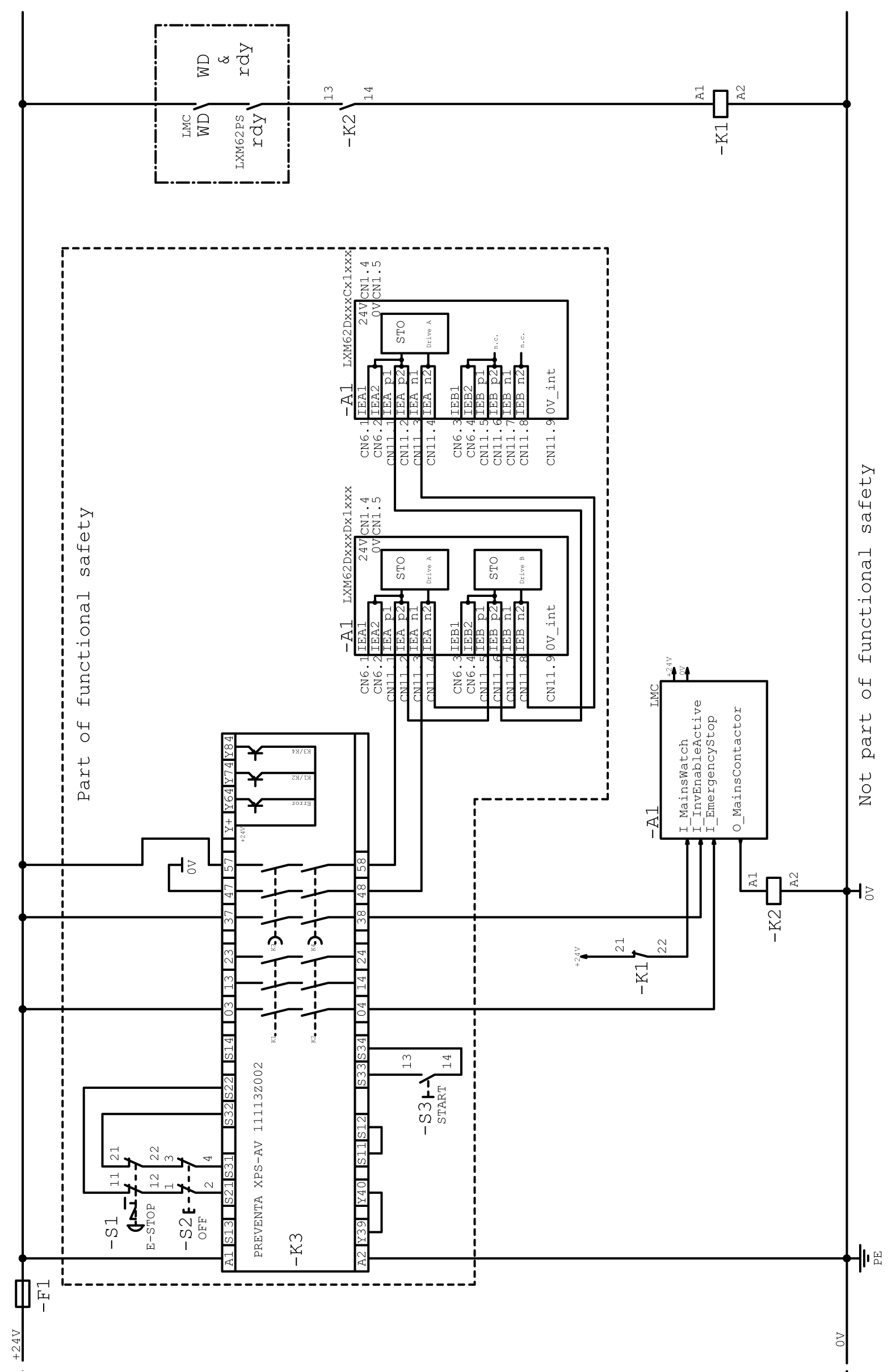
Cableado de la propuesta de aplicación: circuito de control con función STO cableada (CN11)

Esquema número APP-111011-001, válido para las variantes C/D/E/F/G del Lexium 62:

Para las funciones de seguridad basadas en software, use Sercos y OpenSAFETY.

Propuesta de aplicación para el ciclo de carga

Esquema número APP-111011-001