Propuesta de aplicación para las variantes C/D/G de dos canales con cableado protegido

Descripción general

1 Dispositivo de conmutación de seguridad

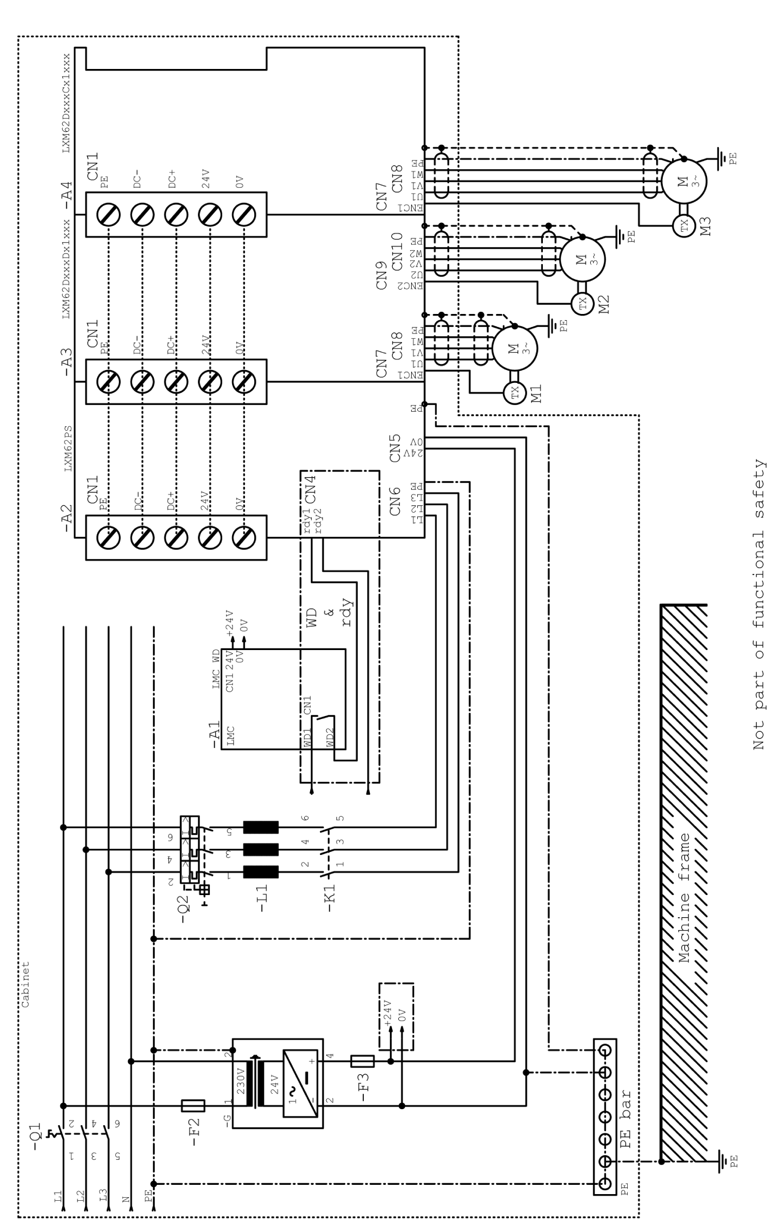
2 Armario eléctrico

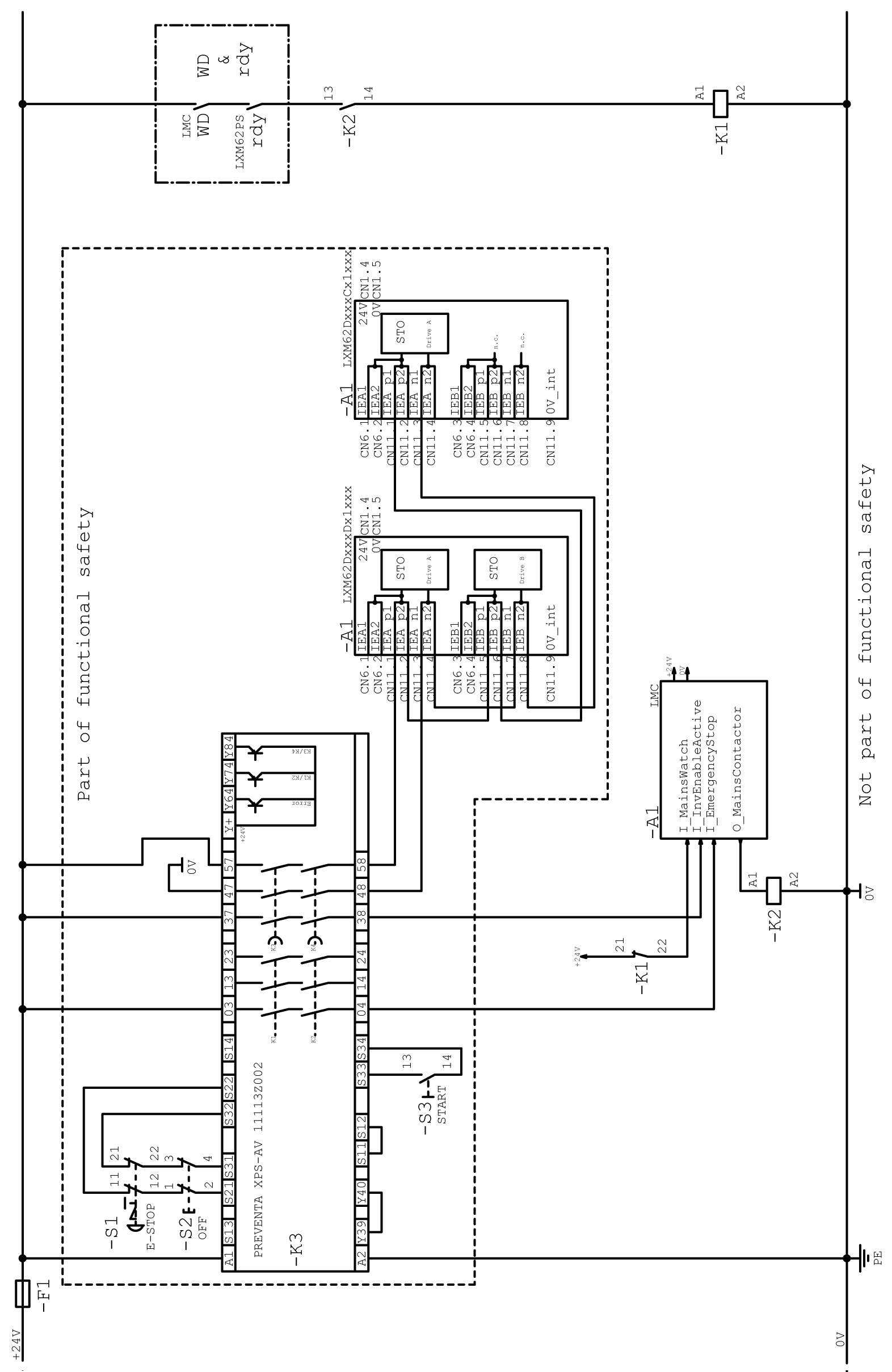
Parada de seguridad de categoría 1 (SS1)

Hay una propuesta de aplicación para implementar la parada de seguridad de categoría 1 definida (SS1):

  • APP‑111011‑001: circuito Inverter Enable para la parada de seguridad 1 de Logic Motion Controller (SS1) con un circuito de protección y una interrupción de dos canales

Notas sobre la propuesta de aplicación (generales)

  • La propuesta de aplicación ofrece un cableado de IEA/IEB protegido (armario eléctrico IP54) desde el dispositivo de conmutación relacionado con la seguridad hasta el Lexium 62, de forma que pueda excluir posibles problemas con el cableado.

  • La protección contra reinicios automáticos viene dada por el dispositivo de conmutación externo de seguridad.

  • Si no se pueden descartar posibles errores, puede realizarse un diagnóstico de las variantes de dos canales. Este proceso debe realizarse de forma externa, y no aparece en la propuesta de aplicación.

Notas sobre la propuesta de aplicación (notas sobre la APP‑111011‑001)

El contactor de red K1 de esta propuesta de circuito no es necesario para garantizar la seguridad funcional. Sin embargo, se usa en la propuesta de aplicación para el dispositivo de protección de las fuentes de alimentación o el Lexium 62 Servo Drives.

Propuesta de aplicación para el circuito de control (esquema número APP‑111011‑001)

Propuesta de aplicación para el ciclo de carga (esquema número APP‑111011‑001)