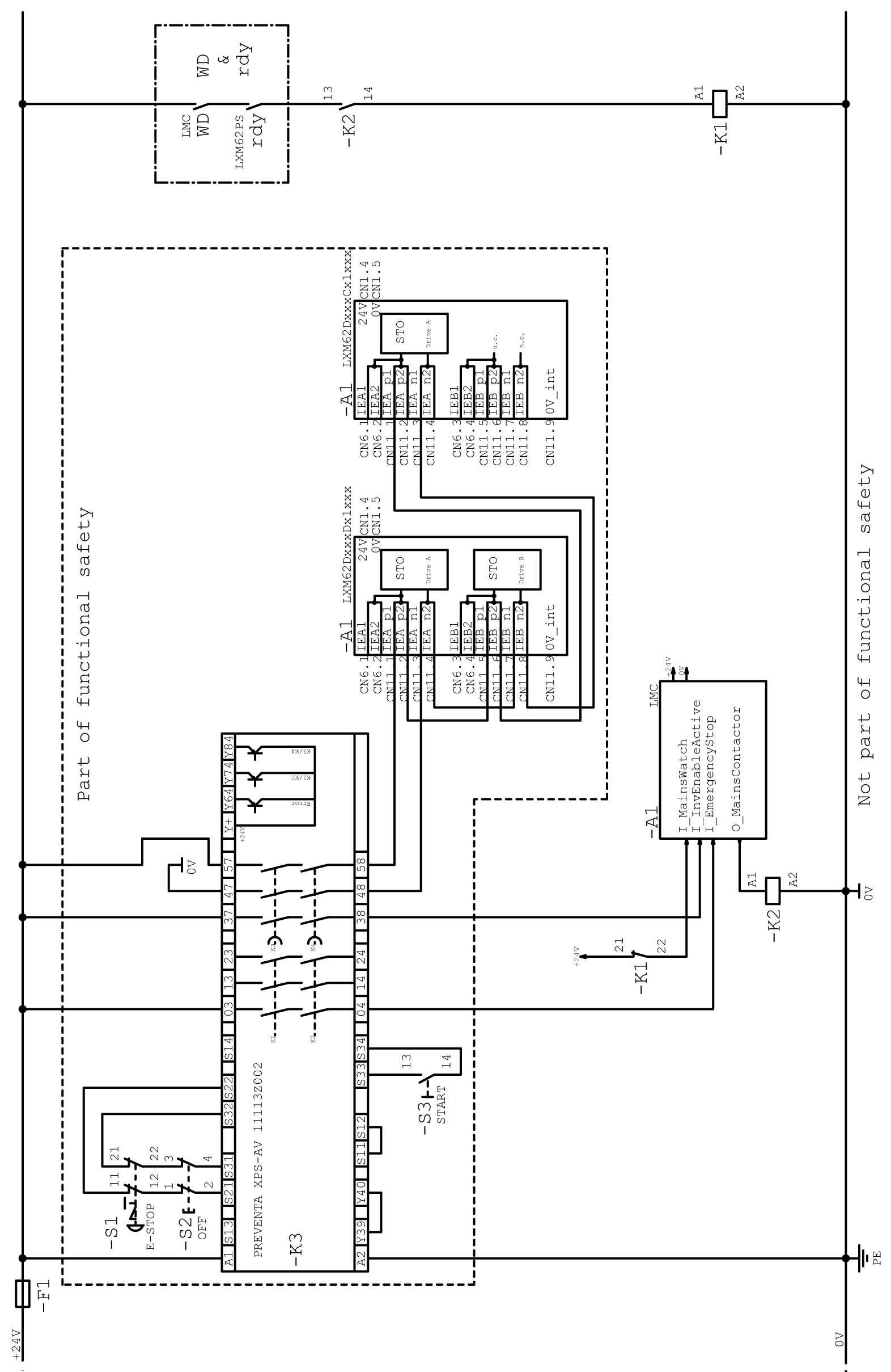
Proposta di applicazione per le varianti C/D/G a due canali con cablaggio protetto

Panoramica generale

1 Dispositivo di commutazione di sicurezza

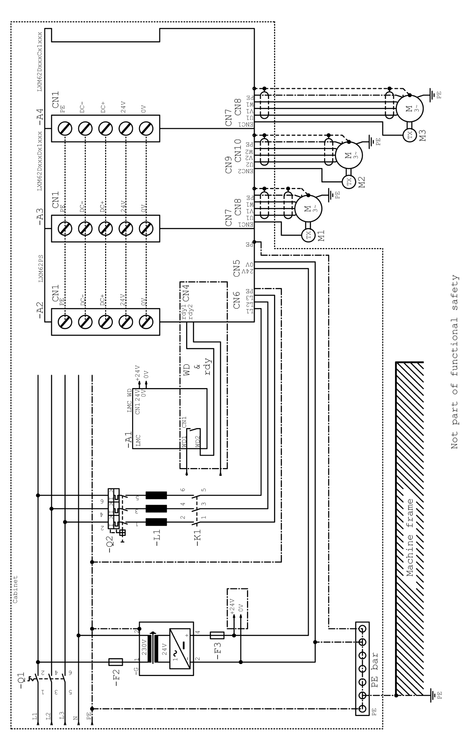
2 Armadio elettrico

Arresto sicuro di categoria 1 (SS1)

Esiste una proposta di applicazione per implementare l'arresto sicuro definito di categoria 1 (SS1):

  • APP‑111011‑001: circuito Inverter Enable per Arresto sicuro 1 Logic Motion Controller (SS1) con un circuito di protezione e interruzione a due canali

Note relative alla proposta di applicazione - Principi generici

  • La proposta di applicazione fornisce un cablaggio protetto IEA/IEB (armadio di controllo IP54) dal dispositivo di commutazione di sicurezza al Lexium 62, per poter escludere potenziali problemi di cablaggio.

  • La protezione dal riavvio automatico è fornita dal dispositivo di commutazione esterno di sicurezza.

  • Se non è possibile evitare errori potenziali, è possibile fornire eventualmente una diagnostica per le varianti a due canali. Ciò deve essere realizzato esternamente e non è indicato nella proposta di applicazione.

Note relative alla proposta di applicazione - Note su APP‑111011‑001

Il contattore di rete K1 in questa proposta di circuito non è necessario ai fini della sicurezza funzionale. Tuttavia, viene utilizzato nella proposta di applicazione per la protezione dispositivo di alimentatori o Lexium 62 Servo Drives.

Proposta di applicazione per il circuito di controllo (numero disegno APP‑111011‑001)

Proposta di applicazione per il ciclo di carico (numero disegno APP‑111011‑001)