Posizioni di montaggio e distanze M262 Logic/Motion Controller

Introduzione

Questa sezione descrive le posizioni di montaggio corrette per il modulo M262 Logic/Motion Controller.

NOTA: Mantenere le distanze appropriate per assicurare una ventilazione appropriata e rispettare la temperatura ambiente specificata nelle caratteristiche ambientali.

Posizione di montaggio corretta

Per ottenere le caratteristiche di funzionamento ottimali, il M262 Logic/Motion Controller deve essere montato come indicato nelle illustrazioni di seguito:

Posizione di montaggio accettabile

Il M262 Logic/Motion Controller può anche essere montato verticalmente su un piano verticale come illustrato di seguito:

NOTA: i moduli di espansione TM3 devono essere montati sopra il controller.

Posizioni di montaggio errate

Il M262 Logic/Motion Controller deve essere posizionato come mostrato nelle illustrazioni Posizione di montaggio corretta. Le illustrazioni seguenti mostrano posizioni di montaggio errate:

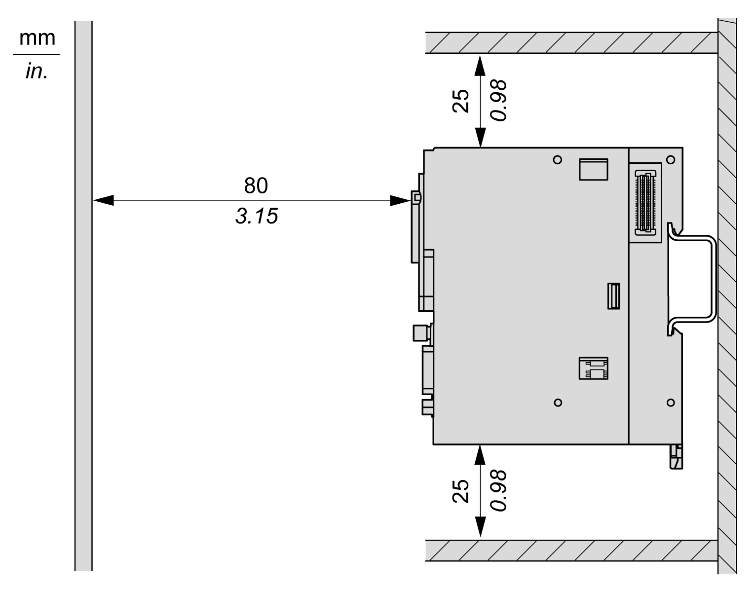
Distanze minime

 AVVERTIMENTO
FUNZIONAMENTO IMPREVISTO DELL'APPARECCHIATURA
  • Posizionare i dispositivi con maggiore dispersione di calore nella parte alta del cabinet e garantire una ventilazione adeguata.
  • Evitare di posizionare l'apparecchiatura vicino o sopra a dispositivi che possono provocare surriscaldamento.
  • Installare il dispositivo in una posizione che garantisca la distanza minima descritta in questo manuale da tutte le strutture e le apparecchiature adiacenti.
  • Installare tutte le apparecchiature in conformità alle specifiche riportate nella rispettiva documentazione.
Il mancato rispetto di queste istruzioni può provocare morte, gravi infortuni o danni alle apparecchiature.

Il M262 Logic/Motion Controller è stato progettato come un prodotto IP20 e deve essere installato in un cabinet. Nell'installazione del prodotto occorre rispettare le distanze minime indicate.

Vi sono tre tipi di distanze minime da considerare:

  • Il M262 Logic/Motion Controller e tutti i lati del cabinet (incluso lo sportello del pannello).

  • Tra la morsettiera M262 Logic/Motion Controller e le canaline di cablaggio per ridurre le interferenze elettromagnetiche potenziali tra il controller e il cablaggio in canalina.

  • Il M262 Logic/Motion Controller e altri dispositivi che generano calore installati nello stesso cabinet.

Nell'illustrazione seguente sono indicate le distanze minime per tutti i prodotti M262 Logic/Motion Controller: