Gehäuse von TM5-System

Einleitung

Die Komponenten des TM5-Systems werden "direkt nebeneinander" montiert. Es besteht kein Abstand zwischen den einzelnen TM5-Komponenten.

Die Komponenten des TM5-Systems erfüllen die Schutzart IP20 und müssen in einem Gehäuse untergebracht werden. Für eine optimale Kühlung und Belüftung muss zwischen dem im Gehäuse installierten TM5-System und den Objekten in der Umgebung, wie Kabelkanälen und Innenflächen des Gehäuses, ein geeigneter Abstand eingehalten werden.

Gehäusegröße

Die Gehäusegröße hängt von der Anzahl der mit Sercos III Bus Interface verwendeten Erweiterungsmodule sowie eventuellen weiteren Zusatzeinrichtungen ab. Die erforderlichen Abstände müssen bei der Ermittlung der Gehäusegröße berücksichtigt werden.

Sercos III Bus Interface Abmessungen

Die folgende Abbildung zeigt die Abmessungen der Sercos III Bus Interface:

Abmessungen für kompakte E/A

Die folgende Abbildung zeigt die Abmessungen der kompakten E/A:

Abmessungen der Slice

Die folgende Abbildung zeigt die Abmessungen der Slice:

Platzbedarf

HINWEIS:: Lassen Sie ausreichend Abstand, um eine angemessene Belüftung und die Einhaltung einer Umgebungstemperatur gemäß der Beschreibung in den Umgebungskenndaten zu gewährleisten.

Bei der Installation des Produkts müssen die erforderlichen Abstände eingehalten werden.

Es gibt 3 Arten von Abständen:

  • Zwischen dem TM5-System und allen Schaltschrankseiten (einschließlich der Tür). Dieser Abstand gewährleistet eine angemessene Luftzirkulation um das TM5-System.

  • Zwischen den Klemmenleisten des TM5-Systems und den Kabelführungen. Dieser Abstand verhindert das Auftreten elektromagnetischer Störungen zwischen Klemmleisten und Kabelführungen.

  • Zwischen dem TM5-System und anderen wärmeerzeugenden Geräten, die im selben Schaltschrank installiert sind.

 WARNUNG
UNBEABSICHTIGTER GERÄTEBETRIEB
  • Platzieren Sie die Geräte, die am meisten Wärme abgeben, oben im Schrank, und sorgen Sie für ausreichende Belüftung.
  • Montieren Sie dieses Gerät nicht neben oder über anderen Geräten, die Überhitzungen verursachen könnten.
  • Installieren Sie das Gerät an einer Stelle, die den erforderlichen Mindestabstand zu allen umliegenden Aufbauten und Geräten gemäß den Angaben in diesem Dokument gewährleistet.
  • Installieren Sie das Gerät in Übereinstimmung mit den technischen Kenndaten in der zugehörigen Dokumentation.
Eine Nichtbeachtung dieser Anweisungen kann zu Tod, schweren Verletzungen oder Schäden an der Ausrüstung führen.

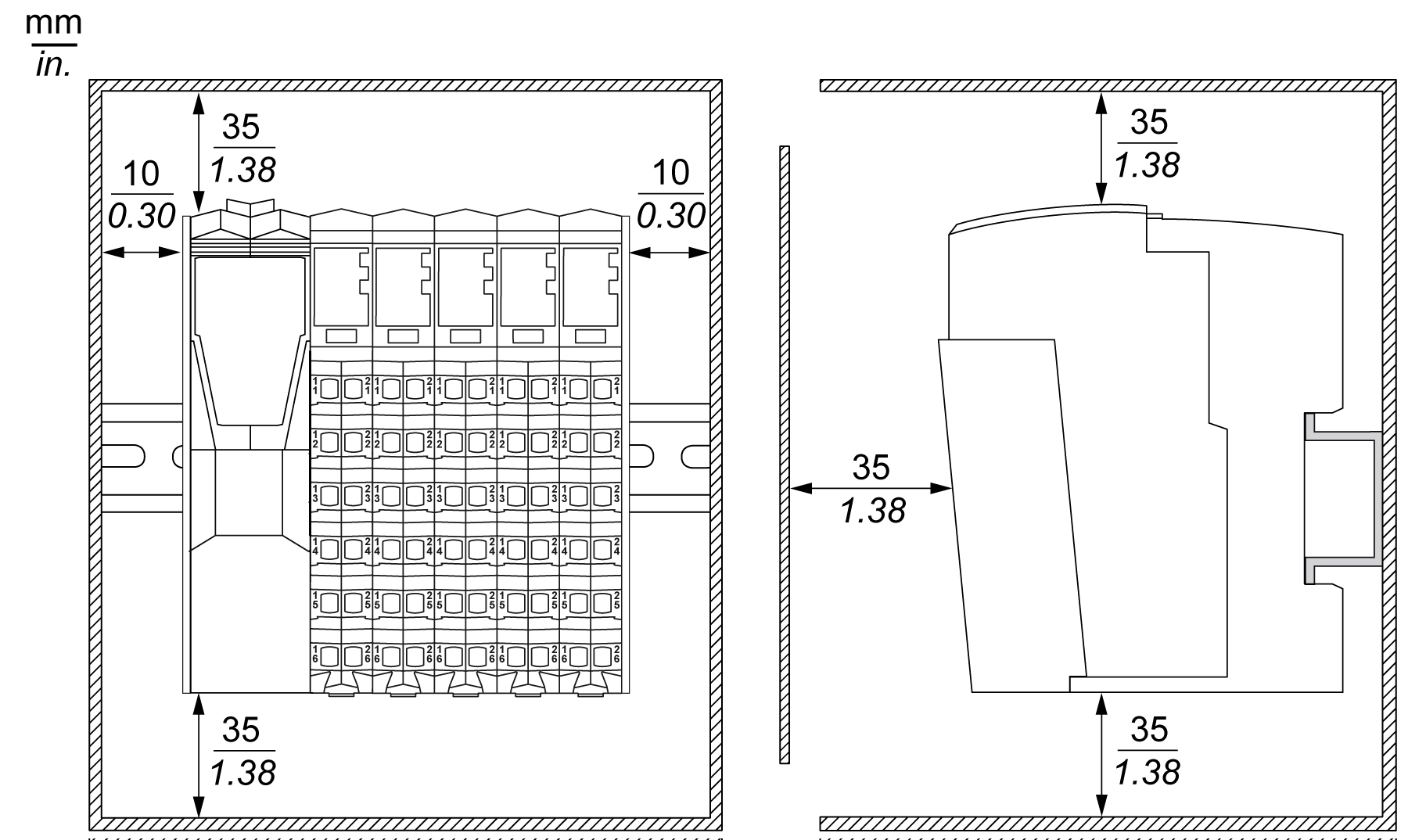
Die folgende Grafik veranschaulicht die erforderlichen Mindestabstände für ein TM5-System in einem Schaltschrank:

Montage

Sie können das System auf einer DIN-Schiene montieren. Zur Erfüllung der EMV-Anforderungen (Elektromagnetische Verträglichkeit) muss eine DIN-Schiene aus Metall auf einer flachen Metallplatte befestigt oder in einem EIA-Rack (Electronic Industries Alliance) oder einem NEMA-Gehäuse (National Electrical Manufacturers Association) montiert werden.

Sie können eine geeignete DIN-Schiene bei Schneider Electric bestellen:

Schienentiefe

Referenz

15 mm (0.59 in.)

AM1DE200

8 mm (0.31 in.)

AM1DP200

15 mm (0.59 in.)

AM1ED200

Hinweise zur Wärmeabfuhr

Halten Sie geeignete Abstände um das TM5-System ein, um eine ausreichende Wärmeabfuhr zu gewährleisten. Montieren Sie das TM5-System vorzugsweise in der kühleren Zone, dies ist meist der untere Bereich des Gehäuses.

Die folgende Tabelle enthält einige maximale Leistungsverlustwerte, die Sie bei der Planung der Kühlung für das TM5-System und das Schaltschrankgehäuse zur Ermittlung der Leistungsabgabe verwenden können:

Busschnittstelle

Referenz

Maximaler Leistungsverlust (W)

Leistungsminderung(1)

Sercos III Bus Interface

TM5NS31

1.72

Nein

Interface Power Distribution Module (IPDM)

TM5SPS3

1.82

Ja

(1)

Die Leistungsminderung ist für jedes Gerät spezifisch. Siehe TM5SPS3 - Kenndaten.

Referenz für kompakte E/A

Maximaler Leistungsverlust (W)

Leistungsminderung 1)

TM5C24D18T

3,71

Ja

TM5C12D8T

2,36

Nein

TM5C12D6T6L

7,3

Nein

TM5C24D12R

4,3

Ja

TM5CAI8O8VL

5,25

Nein

TM5CAI8O8CL

5,25

Nein

TM5CAI8O8CVL

5,25

Nein

(1)

Die Leistungsminderung ist für jedes Gerät spezifisch. Einzelheiten dazu finden Sie im Modicon TM5 Kompakte E/A-Module Hardwarehandbuch.

Slice-Typ

Elektronikmodulreferenz der Slice

Maximaler Leistungsverlust der Slice (W)

Leistungsminderung 1)

Digitaleingang

TM5SDI2D

0,54

Nein

TM5SDI2DF

1,10

Nein

TM5SDI4D

0,86

Nein

TM5SDI6D

1,16

Nein

TM5SDI12D

2,06

Ja

TM5SDI2A

0,82

Nein

TM5SDI4A

1,21

Nein

TM5SDI6U

1,02

Nein

Digitalausgang

TM5SDO2T

0,59

Nein

TM5SDO4T

0,78

Nein

TM5SDO4TA

0,79

Nein

TM5SDO6T

1,02

Nein

TM5SDO8TA

0,35

Ja

TM5SDO12T

1,54

Ja

TM5SDO2R

0,58

Ja

TM5SDO4R

0,93

Nein

TM5SDO2S

2,13

Ja

Eingang/Ausgang kombiniert

TM5SDM12DT

1,44

Ja

TM5SMM6D2L

1,75

Ja

Analogeingang

TM5SAI2L

0,94

Nein

TM5SAI2H

1,34

Nein

TM5SAI4L

1,24

Nein

TM5SAI4H

1,64

Ja

TM5SAI2PH

1,24

Nein

TM5SAI2TH

0,86

Nein

TM5SAI4PH

1,24

Nein

TM5SAI6TH

1,05

Nein

Analogausgang

TM5SAO2L

1,24

Nein

TM5SAO2H

1,34

Nein

TM5SAO4L

1,64

Ja

TM5SAO4H

1,64

Ja

Expertenmodul

TM5SE1IC02505

1,64

Nein

TM5SE1IC01024

1,54

Nein

TM5SE2IC01024

1,64

Nein

TM5SE1SC10005

1,64

Nein

TM5SE1IC20005

1,01

Nein

TM5SE1MISC20005

1,51

Nein

Sendermodule

TM5SBET1

1,23

Nein

TM5SBET7

1,84

Ja

Empfängermodul

TM5SBER2

2,35

Ja

Kommunikationsmodul

TM5SE1RS2

1,57

Nein

Power Distribution Module (PDM)

TM5SPS1

0,93

Nein

TM5SPS1F

1,15

Nein

TM5SPS2

1,04

Ja

TM5SPS2F

2,26

Ja

CDM (Gemeinsames Verteilermodul)

TM5SPDG12F

1,25

Nein

TM5SPDD12F

1,25

Nein

TM5SPDG5D4F

1,40

Nein

TM5SPDG6D6F

1,40

Nein

Dummy-Modul

TM5SD000

0,13

Nein

(1)

Die Leistungsminderung ist für jedes Gerät spezifisch. Detaillierte Informationen finden Sie in den Handbüchern der Erweiterungshardware.

Bei den oben angegebenen Werten wird von einer maximalen Busspannung, einer maximalen Feldseitenspannung und maximalen Lastströmen ausgegangen. Typische Werte sind häufig erheblich niedriger.

 WARNUNG
UNBEABSICHTIGTER GERÄTEBETRIEB
  • Platzieren Sie die Geräte, die am meisten Wärme abgeben, oben im Schrank, und sorgen Sie für ausreichende Belüftung.
  • Montieren Sie dieses Gerät nicht neben oder über anderen Geräten, die Überhitzungen verursachen könnten.
  • Installieren Sie das Gerät an einer Stelle, die den erforderlichen Mindestabstand zu allen umliegenden Aufbauten und Geräten gemäß den Angaben in diesem Dokument gewährleistet.
  • Installieren Sie das Gerät in Übereinstimmung mit den technischen Kenndaten in der zugehörigen Dokumentation.
Eine Nichtbeachtung dieser Anweisungen kann zu Tod, schweren Verletzungen oder Schäden an der Ausrüstung führen.
HINWEIS:: Lassen Sie ausreichend Abstand, um eine angemessene Belüftung und die Einhaltung einer zutreffenden Umgebungstemperatur zu gewährleisten. Die maximale Umgebungstemperatur hängt von der Montageposition ab.