Bonnes pratiques en matière de câblage

Introduction

Plusieurs règles doivent être respectées lors du câblage d'un contrôleur Système TM7. Pour plus d'informations, voir la section Câbles TM7.

Règles de câblage

DangerElectrical_Color.gifDanger_Color.gifDANGER

RISQUE DE CHOC ÉLECTRIQUE, D'EXPLOSION OU D'ÉCLAIR D'ARC

oCoupez toutes les alimentations de tous les équipements, y compris les équipements connectés, avant de retirer les caches ou les portes d'accès, ou avant d'installer ou de retirer des accessoires, matériels, câbles ou fils, sauf dans les cas de figure spécifiquement indiqués dans le guide de référence du matériel approprié à cet équipement.

oUtilisez toujours un appareil de mesure de tension réglé correctement pour vous assurer que l'alimentation est coupée conformément aux indications.

oRemettez en place et sécurisez tous les capots de protection, accessoires, matériels, câbles et fils, et vérifiez que l'appareil est bien relié à la terre avant de le remettre sous tension.

oN'utilisez que la tension indiquée pour faire fonctionner cet équipement et les produits associés.

Le non-respect de ces instructions provoquera la mort ou des blessures graves.

Les règles suivantes doivent être respectées pour le câblage du Système TM7 :

oLe câblage des E/S et de la communication doit être séparé du câblage d'alimentation. Acheminez ces deux types de câblage dans des gaines séparées.

oVérifiez que les conditions d'utilisation et d'environnement respectent les plages spécifiées.

oUtilisez des câbles de taille appropriée, afin de respecter les exigences en matière de courant et de tension.

oUtilisez uniquement des conducteurs en cuivre.

oUtilisez uniquement les câbles de bus d'extension TM7.

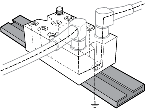
Mise à la terre des blocs TM7

En cas d'utilisation de câbles préfabriqués IP67, les blocs Système TM7 intègrent un système de mise à la terre propre au matériel de montage et de connexion. Les blocs Système TM7 doivent toujours être montés sur une embase conductrice. L'embase ou l'objet utilisé pour le montage des blocs (cadre métallique, rail de montage ou plaque de montage) doit être mis à la terre (PE) conformément aux exigences et règles locales, régionales et nationales. Consultez la section consacrée à la mise à la terre des blocs système, car elle indique des informations importantes.

NOTE : si vous n'utilisez pas des câbles préfabriqués Schneider Electric IP67, vous devez utiliser des câbles blindés et des connecteurs conducteurs (fils métalliques sur le connecteur), et raccorder le blindage du câble à la gaine métallique du connecteur.

Warning_Color.gifAVERTISSEMENT

DISCONTINUITE DE LA MISE A LA TERRE

oUtilisez exclusivement des câbles munis d'une gaine blindée isolée.

oUtilisez exclusivement des connecteurs IP67 avec fils métalliques.

oBranchez le blindage du câble aux fils métalliques des connecteurs.

oRespectez toujours les règles de câblage locales, régionales et/ou nationales.

Le non-respect de ces instructions peut provoquer la mort, des blessures graves ou des dommages matériels.

La figure suivante illustre la mise à la terre du Système TM7 :

G-SE-0006442.1.gif

 

 

Protection des sorties contre les dommages dus aux charges inductives

En fonction de la charge, un circuit de protection peut être requis pour les sorties sur certains blocs. Les charges inductives utilisant des tensions CC peuvent créer des réflexions de tension entraînant un dépassement qui va endommager les équipements de sortie ou en réduire la durée de vie.

AVIS

EQUIPEMENT INOPERANT

oVérifiez que les actionneurs connectés aux blocs d'E/S numériques TM7 comportent un circuit de protection intégré pour réduire le risque de dommages par charge inductive sur les sorties.

oSi les actionneurs ne comportent pas de protection intégrée, utilisez un circuit de protection IP67 externe approprié pour réduire le risque de dommages par charge inductive sur les sorties.

Le non-respect de ces instructions peut provoquer des dommages matériels.

NOTE : les schémas de câblage suivants sont conceptuels et sont fournis à titre informatif pour faciliter la sélection de l'équipement de protection IP67 approprié.

Circuit de protection A : ce circuit de protection peut être utilisé pour des circuits à courant continu.

G-SE-0006793.2.gif-high.gif

 

 

oC représente une valeur comprise entre 0,1 et 1 μF.

oR représente une résistance dont la valeur est quasi identique à la charge.

Circuit de protection B : ce circuit de protection peut être utilisé pour des circuits à courant continu.

G-SE-0006794.2.gif-high.gif

 

 

Utilisez une diode ayant les caractéristiques nominales suivantes :

oTension de tenue inverse : tension d'alimentation du circuit de charge x 10.

oCourant direct : supérieur au courant de charge.

Circuit de protection C : ce circuit de protection peut être utilisé pour des circuits à courant continu.

G-SE-0006795.2.gif-high.gif

 

 

Dans les applications où la charge inductive est fréquemment et/ou rapidement activée et désactivée, assurez-vous que la valeur nominale continue de la varistance (J) est supérieure de 20 % (voire plus) à l'énergie de crête de la charge.