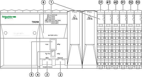
下图显示了 TM258LD42DT4L 的各个组件:
|
编号 |
名称 |
请参阅 |
|---|---|---|
|
1 |
LED 状态 |
|
|
2 |
以太网端口/RJ45 类型 |
|
|
3 |
串行线路/RJ45 类型(RS232 或 RS485) |
|
|
4 |
USB 编程端口/用于编程 PC (EcoStruxure Machine Expert) 的终端连接 |
|
|
5 |
USB 主机/用于存储盘管理 |
|
|
6 |
电池 |
|
|
31 |
控制器配电模块/用于连接外部电源 |
|
|
41 |
嵌入式专用 I/O 模块/5 路快速输入、2 路常规输入、2 路快速输出 |
|
|
42 |
||
|
51 |
嵌入式常规输入模块/12 路数字量输入 |
|
|
52 |
嵌入式常规输出模块/12 路数字量输出 |
|
|
53 |
嵌入式常规输入模块/4 路模拟量输入(12 位) |
概述
下表描述了控制器状态 LED:
|
标记 |
描述 |
LED 指示灯 |
|
|---|---|---|---|
|
颜色 |
描述 |
||
|
MS |
模块状态 |
绿色/红色 |
请参见下面的 MS 状态 LED |
|
BATTERY |
电池状态 |
红色 |
需要更换 RTC 电池时亮起 |
|
APP0 |
应用程序 LED |
绿色/红色 |
由用户应用程序管理 |
|
APP1 |
|||
下表描述了 MS 状态 LED:
|
状态 LED |
控制器状态 |
程序端口通讯 |
应用程序执行 |
|---|---|---|---|
|
绿色闪烁/红色 |
正在启动 |
否 |
否 |
|
红色闪烁 |
无效操作系统 |
受限制的 |
否 |
|
绿色一次闪烁 |
空 |
是 |
否 |
|
绿色亮起 |
运行中 |
是 |
是 |
|
绿色闪烁 3 次 |
断点运行 |
是 |
受限制的 |
|
绿色闪烁 |
STOPPED |
受限制的 |
否 |
|
红色一次闪烁 |
暂停 |
是 |
否 |
|
红色快速闪烁 |
检测到硬件错误后重新启动 |
是 |
无(空) |
|
红色亮起 |
检测到系统错误后暂停 |
否 |
否 |
|
熄灭 |
未通电 |
否 |
否 |
|
绿色/伴随红色一次闪烁 |
正在运行,并检测到外部错误 或其他引导项目 或无引导项目 |
是 |
是 |
|
绿色闪烁/伴随红色一次闪烁 |
已停止,并检测到外部错误 |
受限制的 |
否 |
注意: 有关控制器状态的详细信息,请参考您特定控制器之编程指南中有关“操作模式”的说明。
有关下列 LED 的更多详细信息:
oEth LA、Eth ST 和 Eth NS,请参阅以太网端口 - 状态 LED。
oUSB 主机,请参阅 USB 主机端口 - 状态 LED。
oMBS COM,请参阅串行线路端口 - 状态 LED。
oCAN0 STS,请参阅 CAN 端口 - 状态 LED。
识别逻辑控制器
下图显示了位于前面板显示区的 LED:
当识别逻辑控制器时,LED 会闪烁。有关详细信息,请参阅 EcoStruxure Machine Expert - 编程指南。
下表描述了控制器的状态:
|
状态 |
描述 |
|---|---|
|
正在启动 |
控制器执行引导固件及其自身的内部自检。它不执行应用程序,也不进行通讯。随后它将检查固件和应用程序的校验和。 |
|
INVALID_OS |
操作系统无效。控制器无法执行应用程序。通讯受限。 |
|
空 |
用户应用程序无效,或检测到硬件错误。控制器不会执行应用程序,但是它可以进行通讯。 |
|
运行中 |
控制器执行应用程序。 |
|
STOPPED |
控制器中的一个有效应用程序停止。 |
|
暂停 |
控制器检测到应用程序或系统错误,已经停止执行应用程序。 |
注意: 有关控制器状态的详细信息,请参考您特定控制器之编程指南中有关“操作模式”的说明。
下图显示了控制器的外部尺寸:
下表描述了 TM258LD42DT4L 的重量:
|
重量 |
||
|---|---|---|
|
TM258LD42DT4L |
770 克(24.7 盎司) |
|